Hadley Highstone, Barnet
- Detached House
- 6
- 3
- 4
- Freehold
Description:
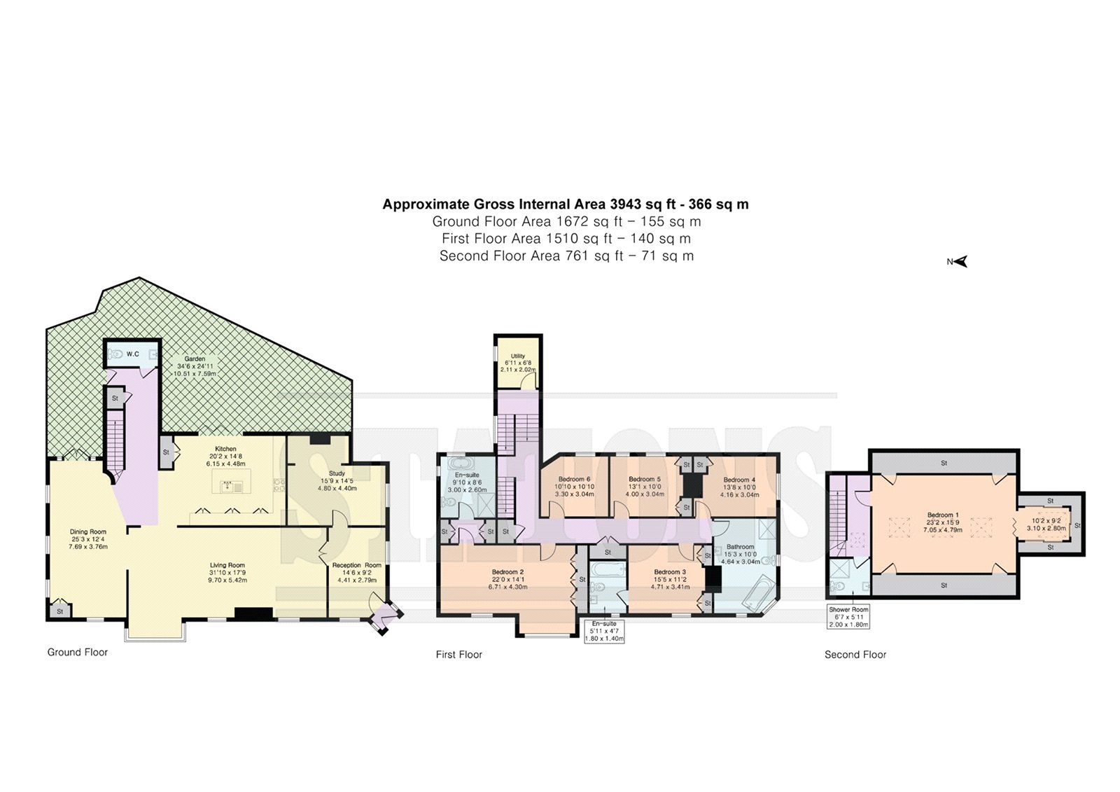
An exceptional detached family residence nestled in the heart of one of Hadley’s most sought-after addresses, Old Windmill offers elegant and expansive accommodation across three beautifully appointed floors.
The ground floor welcomes you with a spacious reception hall entrance that leads into an impressive living area – which is the true heart of the home. This contemporary space flows seamlessly into a large dining room, perfect for hosting and entertaining and with double doors giving on to the garden. The fitted kitchen is approached from the living area and leads directly onto the walled courtyard style garden. There is a further sitting room offering a refined setting for guests or quiet relaxation. Additional conveniences on this level include a utility room, guest WC, and a sweeping straicase that leads to the first floor.
Upstairs, comprises six well proportioned bedrooms. Two enjoy private en-suite facilities, while the remaining bedrooms are served by a stylish family bathroom. Ample storage is thoughtfully integrated throughout, catering to the practical needs of modern living.
The top floor is dedicated to a luxurious principal suite. This private sanctuary features a large bedroom space, an en-suite bathroom, dressing areas, and additional eaves storage – the perfect retreat from busy family life.
Hadley Highstone is a highly sought after conservation area close to Hadley Green, within walking distance to High Barnet tube, Barnet High Street with its many shops, cafés and restaurants. Old Fold Golf CLub is close by as well as some the areas highly regarded schools, both private and state.
Local Authority: Barnet
Council Tax Band: H
Tenure: Freehold

