Hendon Wood Lane, Mill Hill
- Detached House
- 3
- 2
- 2
- Freehold
Key Features:
- Enormouis Potential To Extend & Improve
- 3/4 Bedrooms
- En Suite Dressing Room
- 2 Bathrooms
- Reception Hall Entrance
- Guest Cloakroom
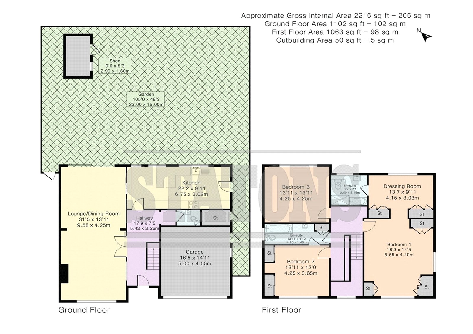
- 31'5 Double Reception Room
- 22'2 Kithcne/Breakfast Room
- Delightful Garden
- Double Garage
- Sweeping Drive
- Off Street Parking
Description:
** ENORMOUS POTENTIAL TO EXTEND AND IMPROVE SUBJECT TO PLANNING PERMISSION **
A delightful contemporary style 3/4 bedroom detached house, (originally 4 bedrooms) located in this highly sought after and desirable neighbourhood, being in need of some updating.
As you enter, you are greeted by a spacious reception hall entrance, a 31'5 double reception room which is ideal for entertaining, a 22'2 kitchen/breakfast room and a guest cloakroom.
On the first floor there is a large landing, a spacious principal bedroom suite, which was once 2 bedrooms, and now comprises of a large bedroom with en suite dressing room and a bathroom/wc. There are two further bedrooms, plus a family bathroom.
Outside, the beautifully landscaped garden provides a private oasis for relaxation, gardening, double garage, offering secure parking and extra storage space, plus a deep drive with additional parking.
With its excellent layout, ample living space, and prime location, this house is perfect for families seeking a comfortable and stylish home. Don't miss the opportunity to make this charming property your own!
Local Authority: Barnet
Tax Band: G
Freehold























