High Ridge, Cuffley
- Detached House
- 4
- 2
- 2
Key Features:
- Top to Bottom Refurb
- 3/4 Bedrooms
- 2 Bathrooms
- 2 Reception Room
- Quiet Cul-de-Sac
- Double Garage
- Large Kitchen Diner
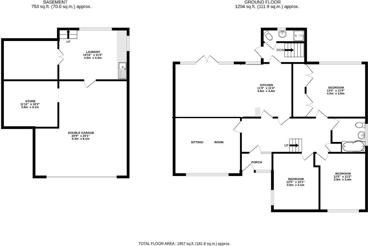
- Basement Utility Room
- Local Authority: Welwyn & Hatfield
- Council Band G
Description:
Nestled in the picturesque Town of Cuffley, this modern 3/4 bedroom detached home offers a comfortable and inviting living space spanning 1,957 sq ft. Boasting three bedrooms, two reception rooms, and two bathrooms, this property is perfect for families or professionals. The house is unfurnished, allowing you to add your personal touch to the bright and modern interior.
Outside, you will find a well-maintained garden and a charming patio area, ideal for al fresco dining or enjoying the sunshine. The property also benefits from a double garage, providing ample storage space for vehicles or outdoor equipment.
Don't miss out on the opportunity to make this delightful property your new home. Contact us today to arrange a viewing and experience the tranquility and charm this house has to offer.
Local Authority: Welwyn & Hatfield
Council Band G















