The Warren, Radlett
- Land
Key Features:
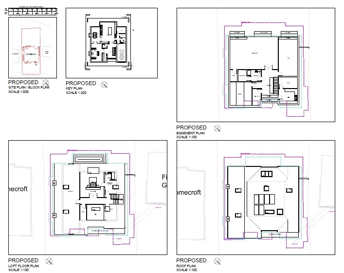
- Development Opportunity With Planning Permission
- TOTAL 712m2 7664sqft
- Premier Location
Description:
DEVELOPMENT OPPORTUNITY WITH PLANNING PERMISSION - Planning permission has been granted for the demolition of the existing dwelling and erection of replacement detached two storey 5 bed dwelling including habitable space at basement and loft level with integral garage of circa 712m2 7664sqft. Application Number: 24/1468/FUL
The site is situated in one of Radlett's premier roads within easy reach if shopping centre and Radlett Thameslink station which is circa 20mins to Kings Cross St Pancras.
Transport links from Radlett are excellent with the M1, M25, and A1(M) motorways all within easy reach making the international airports at Heathrow, Luton and in the City readily accessible.
There are several golf clubs in the area including Aldenham Golf and Country Club and Porters Park. There are also numerous highly regarded independent schools in the area including: Radlett Preparatory, Edge Grove. Aldenham, and both Haberdashers' Boys' School & Girls' School.
Local Authority: Hertsmere
Band: G
Tenure: Freehold

