Arkley Lane, Arkley
- Land
Key Features:
- Development Opportunity
- Planning Permission Granted
- To Comprise:
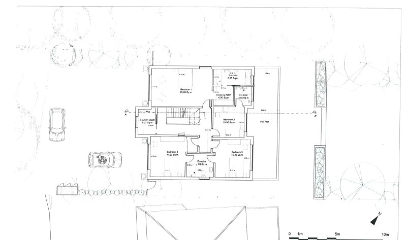
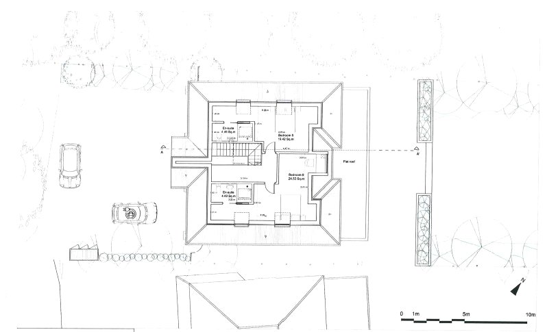
- 6 Bedrooms
- 5 Bathrooms
- 3 Receptions
- Plus Outhouse
- Tranquil Setting
- Further Options Available
Description:
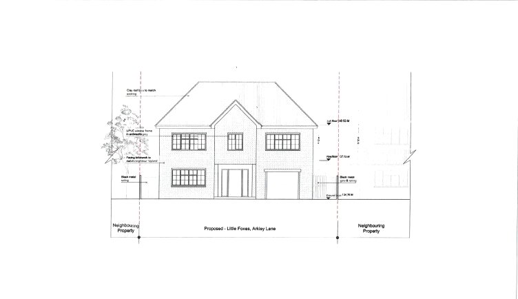
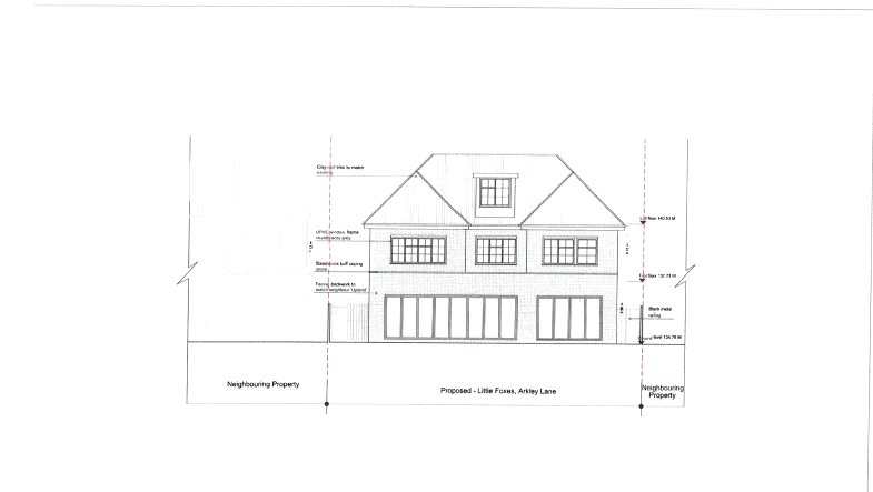
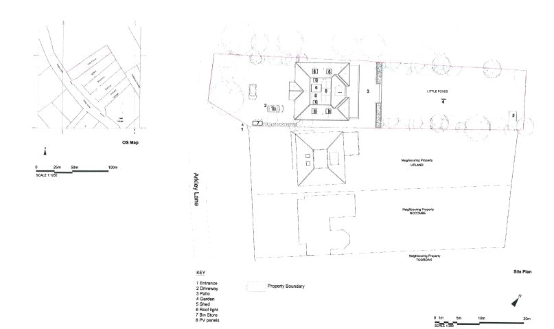
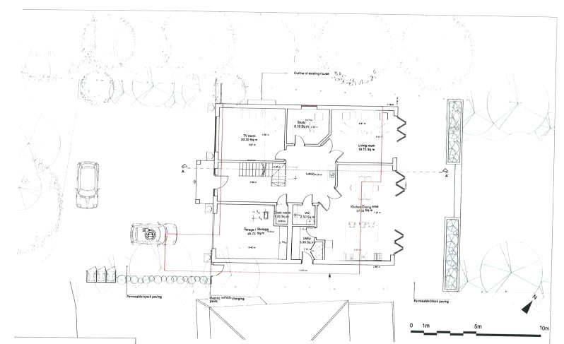
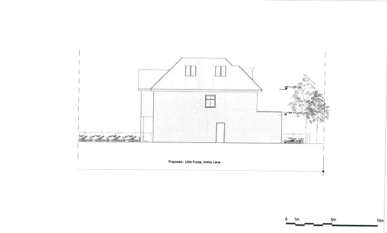
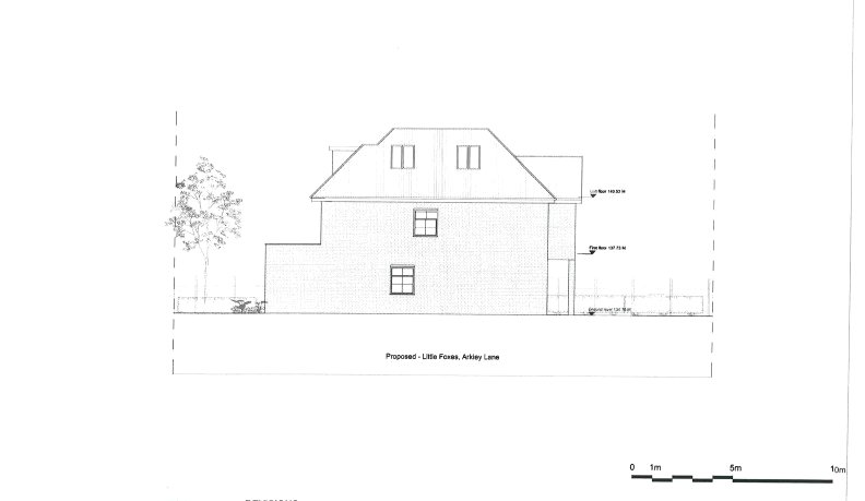
** DEVELOPMENT OPPORTUNITY WITH PLANNING PERMISSION FOR A NEW DETACHED HOUSE PLUS OUTHOUSE **
Planning permission has been granted for a new house incorporating a lift of circa 3,773sqft plus an outhouse. There is also a second option to create a new house of circa 6,244sqft with a basement.
The site is located in the prestigious and sought-after North-London area of Arkley in a private, idyllic and peaceful country lane, (a no-through road), central London can be reached within thirty minutes by car. A number of nearby train stations include Totteridge, Mill Hill and Barnet, also within 5 miles of both the M1 and M25 motorways providing easy access to all of London's airports.
Schools including Haberdasher's Aske's, Mill Hill, Dame Alice, Aldenham, Belmont, Lochinver and Queen Elizabeth's provide top class education in the area. Many schools operate their coach service through Arkley.
Local Authority: Barnet
Band: G
Tenure: Freehold













