Brickendon Lane, Brickendon
- Detached House
- 5
- 3
- 5
- Freehold
Key Features:
- 5 En-Suite Bedrooms
- Indoor Swimming Pool
- Sauna
- Fully Equipped Gym
- 2 Extra Large Garages
- Wine Cellar
- Store Room
- Plant Room
- Tennis Court
- Approximately 8.5 Acres of Manicured Gardens and Land
Description:
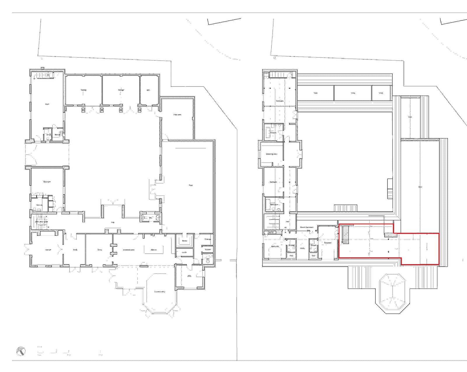
A central courtyard forms the architectural heart of the house and creates a strong sense of arrival. It provides direct access to the leisure and ancillary accommodation, including the indoor swimming pool, studio and gym, and two large garages, allowing the house to function as a cohesive home while offering excellent separation for guests, work and leisure.
Set at the end of a long private driveway and discreetly positioned behind impressive electrically operated timber gates, this elegant country house occupies an exceptionally private position within approximately 8.5 acres of beautifully landscaped grounds. The property enjoys far-reaching views across the surrounding Hertfordshire countryside, while remaining within easy reach of the historic market town of Hertford.
Built on the site of a former working dairy farm and converted during the 1990s, the house now presents a highly individual country home of real architectural interest. The original agricultural buildings were reimagined to form a distinctive courtyard layout and generous, light-filled interiors, combining character and scale with the proportions required for modern family living.
The interiors reflect a relaxed and layered interpretation of English country living, drawing on the warmth and comfort associated with the Cotswolds, with natural materials, soft heritage tones and well-considered detailing throughout.
At the heart of the main accommodation is an exceptional kitchen and family living space arranged as a series of open yet clearly defined areas beneath exposed beams and generous ceiling heights. A substantial island and informal seating area flow into a relaxed family sitting area and onward into a striking glazed dining space.
The dining area comfortably accommodates a table seating fourteen and is anchored by a statement electric Aga, complemented by Miele appliances and a large walk-in pantry.
In addition to the main kitchen and entertaining spaces, the house benefits from a generous and entirely separate formal living room, recently refurbished and extended to create a beautifully proportioned and elegant reception space. Large windows and doors frame open views across the gardens, while a striking open fireplace and bespoke fitted shelving provide a refined focal point for both display and relaxed living. The room offers a wonderful sense of privacy and calm, making it an ideal setting for quieter entertaining or family use away from the main hub of the house.
There is also excellent potential, subject to the usual planning consents, to create further accommodation above this area of the house.
The bedroom accommodation comprises five generously proportioned bedrooms, each with its own en-suite bathroom, providing excellent comfort and privacy for both family and guests.
The principal suite is particularly impressive and includes a dedicated dressing room and vanity area in addition to its en-suite bathroom, creating an elegant and private retreat.
All bath and shower rooms throughout the house have been recently refurbished to an exceptional standard, featuring high-quality sanitaryware and bespoke joinery.
The leisure complex is a defining feature of the property and is accessible directly from both the main house and the central courtyard. It comprises a generous indoor swimming pool opening onto the courtyard, luxurious changing and shower facilities, a private sauna, and a studio and gym with kitchenette. This space offers excellent flexibility and could be transformed into additional accommodation, a home office or an independent annex, subject to the usual consents.
The grounds extend to approximately 8.5 acres and include sweeping lawns, formal gardens with mature planting and well-stocked borders, established trees and a particularly attractive pond area, creating a peaceful and private setting within the wider landscape. Beyond the formal gardens lie extensive paddocks and grazing land.
A broad terrace adjoins the house and provides an ideal setting for outdoor dining and entertaining, while a raised fire-pit area offers a more informal and atmospheric space for evening gatherings. Further amenities include a hard tennis court, two large garages, a store room and a dedicated plant room.
The property is situated in the highly sought-after village of Brickendon, offering a rare balance of complete rural privacy and excellent accessibility. Direct rail services to London, taking approximately 30 minutes, are available from Bayford, Broxbourne and Hatfield, providing convenient connections into Moorgate, Liverpool Street and King’s Cross. The property is also well placed for road access via the A1(M), A10 and M25, and for international travel with convenient access to Stansted, London City and Heathrow airports, all reachable in under one hour.
Families are particularly well served by an excellent selection of schools, including Haileybury, Queenswood, Heathmount and St Joseph’s in the Park.
There are proposed plans, subject to the usual planning consents, to extend the bedroom accommodation.
Council Tax Band: H
Local Authority: East Hertfordshire
Tenure: Freehold

























































