Partingdale Lane, Mill Hill
- Land
- Freehold
Key Features:
- Stunning Development Opportunity
- Planning Permission Granted
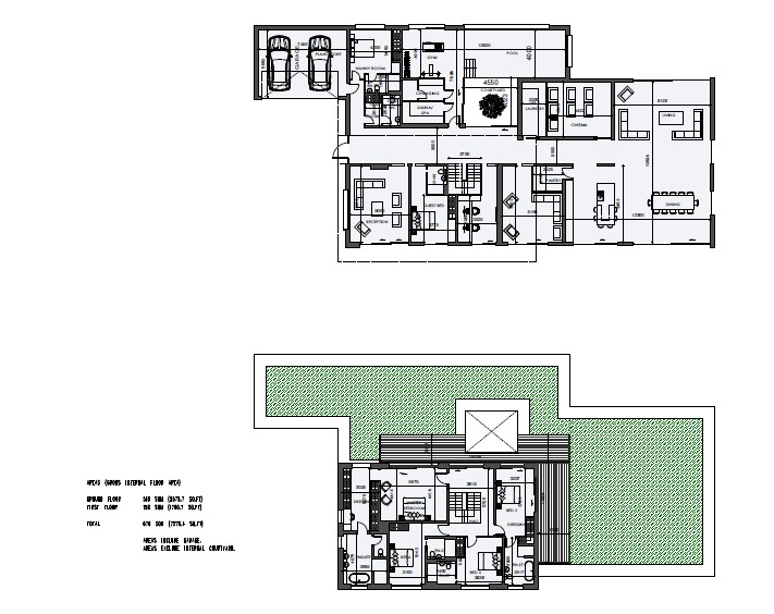
- New House of Circa 7,500sq ft
- Set In Circa 1.5 Acres
- Adjacent To Greenbelt Countryside
- Views Towards Totteridge
Description:
** PLOT FOR SALE - STUNNING DEVELOPMENT OPPORTUNITY **
Situated adjacent to open green belt countryside is this rarely available plot of circa 1.5 acres with uninterrupted rural views towards Totteridge Valley and the Darlands Nature Reserve for which planning permission has been granted for a stunning home of circa 7,500 sqft, complete with indoor pool complex.
The images also show the existing property which is chalet style detached bungalow of circa 3,000 sqft.
Partingdale Lane is a highly sought after location being with close proximity of Mill Hill East station, The London Equestrian Centre, Finchley Golf Club, and some of Mill Hill's highly sought after private and state schools.
The property would be set within delightful mature grounds with many mature trees and shrubs, being approached via a deep sweeping drive.
Local Authority: Barnet











